Cost-saving and environmentally friendly sample storage within an optimal footprint
The MDF-DU502VH VIP ECO ultra-low freezer with natural refrigerants minimises energy consumption, reduces environmental impact and saves money. Innovative technology and Class IIa medical device certification (for EU countries only) provide secure storage of valuable research and clinical samples.
Efficient Refrigeration & Environmentally Friendly
Natural hydrocarbon refrigerants provide more efficient cooling due to their high latent heat of evaporation. As well as improved performance this leads to reduced power consumption and energy costs. Ideal for laboratories looking to reduce their carbon footprint and environmental impact to comply with sustainability policies.
Inverter Technology & Uniform Sample Storage
The MDF-DU502VH VIP ECO ULT Freezer contains Inverter Compressors that maximise cooling performance under different conditions, and contribute to reducing the energy consumption of the freezer. While conventional freezers use single speed compressors which cycle on and off, the MDF-DU502VH VIP ECO ULT Freezer contains inverter compressors that can run at different speeds to maximise cooling performance under different conditions. Combined with hydrocarbon refrigerants, these compressors ensure the most efficient energy use and reduced heat output.
Inverter compressors provide optimum stability, while quality of design ensures reliability. Ideal for samples that are sensitive to temperature fluctuations.
Intelligent Interface & Easy Data Monitoring
The EZlatch makes access to stored samples even easier. A colour LCD touch panel allows full user control, even with gloved hands, while the USB port makes transferring logged data to a PC simple and convenient. Important information such as freezer temperature, door opening times and alarm history is logged for monitoring in GLP applications.
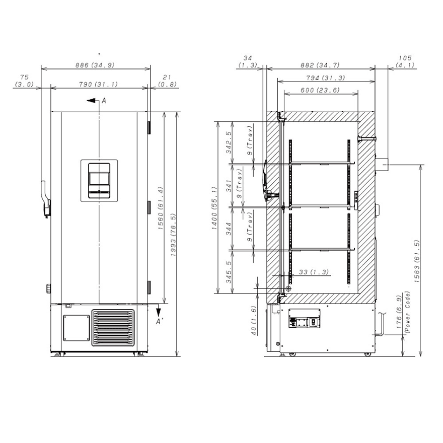
Efficient & Flexible Sample Storage
The combination of VIP PLUS vacuum insulation and an enhanced cabinet design with insulated outer door, ensures optimum temperature uniformity, while the reduced wall thickness maximizes storage capacity. Multiple shelf configurations allow a variety of storage options. Organize your samples by transferring your current inventory racks.
Benefits
- Our most energy efficient 500 litre -86°C freezer - 6.70 kWh/day
- Less heat generation means saving on airconditioning
- Reduce carbon footprint
- VIP PLUS insulation
- Flexible shelf layout
- Intelligent Interface
- Innovative Cabinet Design
- Class IIa Medical Device (for EU countries only)
Features
- Natural Refrigerants
- EZlatch
- LCD Touch screen
- USB port
- Inverter Compressors
- 528 Litre
- 384 2" Boxes